Mostrar mais resultados...

Os Jornais em Foco divulgaram recentemente uma denúncia feita pelo vereador Mainha, do município de Governador Celso Ramos, sobre uma suposta irregularidade ambiental em uma obra multifamiliar de kitnets localizada às margens do Rio Jordão. Segundo o parlamentar, a construção teria sido embargada anteriormente, mas posteriormente liberada, o que ele atribuiu ao fato de a obra pertencer ao pai de um secretário municipal.
Após a publicação, o ex-vereador de Florianópolis, Deglaber Goulart, pai do secretário Douglas Goulart, da Secretaria de Esportes de Governador Celso Ramos entrou em contato com os Jornais em Foco para esclarecer os fatos. Ele afirmou que a obra é de sua propriedade, que não há qualquer tipo de crime ambiental e que a construção está situada a mais de 30 metros do Rio Jordão, respeitando, portanto, a legislação ambiental vigente.
Deglaber Goulart destacou ainda que está apresentando toda a documentação e o projeto da obra aos órgãos competentes, com o objetivo de obter o alvará de construção. Segundo ele, o projeto contempla sistema de tratamento de esgoto e segue todas as normas técnicas exigidas, o que comprova que não existe crime ambiental na obra.
O ex-vereador também declarou que considera as acusações uma forma de perseguição política do vereador Mainha ao seu filho, Douglas, e que está tomando medidas judiciais contra o parlamentar por divulgar informações que ele classifica como falsas.
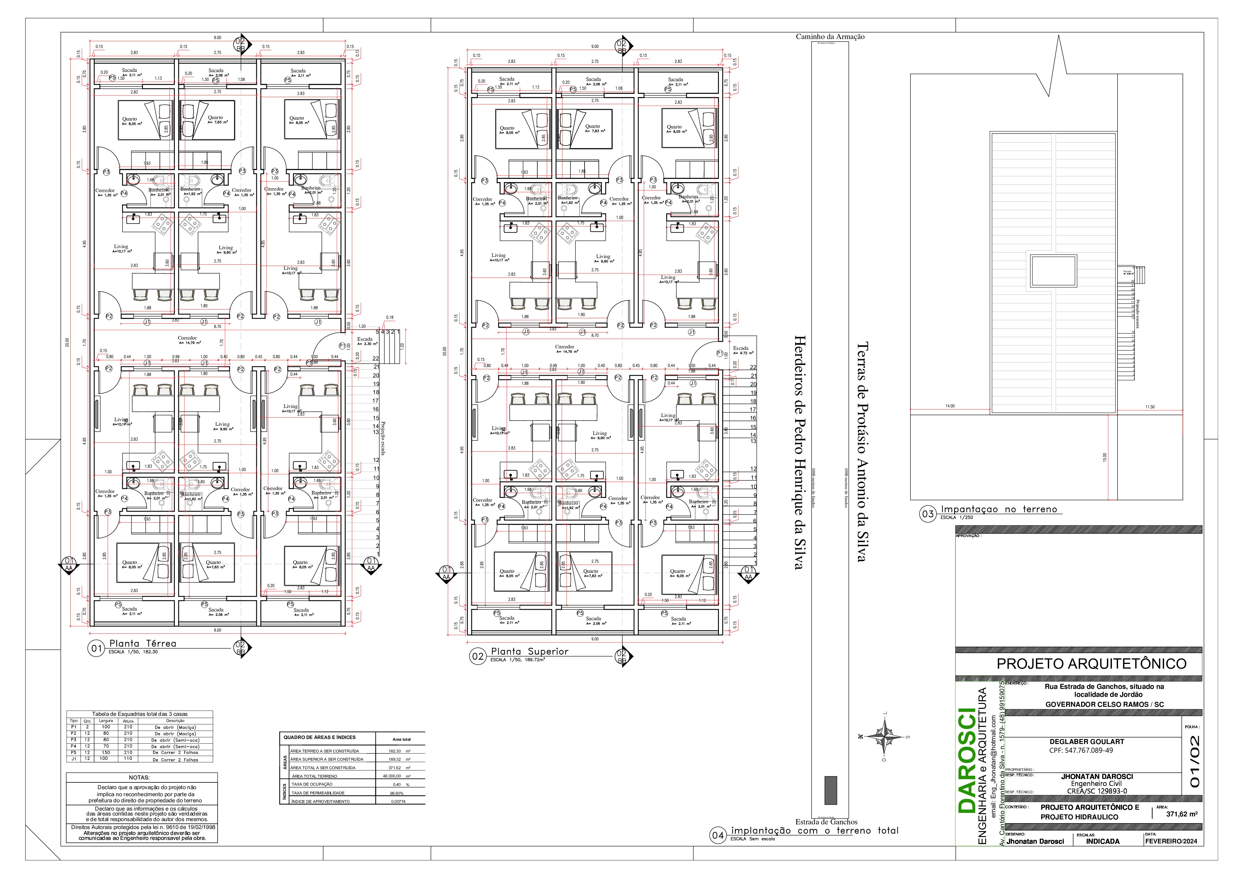
Abaixo o projeto das Kitnetes onde consta o sistema de tratamento de esgoto.
Clique no arquivo Deglaber 02 abaixo e veja o projeto de tratamento de esgoto Deglaber 02
Clique aqui e leia a reportagem da denúncia do vereador Mainha
E abaixo outras reproduções do projeto das Kitinetes.